Однокомнатная квартира 37,35 м2 по ул. деревня Глухово Романовская улица,19 за 6842726 руб.

Однокомнатная квартира по ул. деревня Глухово, Романовская улица,19 в Москве
Цена 6 842 726 р. (183 206 р./м2)
Подать заявку на ипотеку
Адрес деревня Глухово, Романовская улица,19
Этаж 8/8
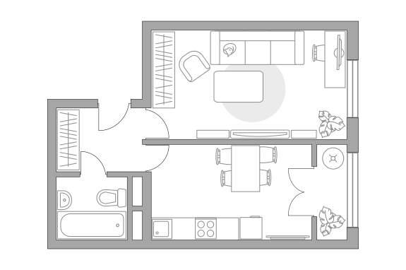
Площадь общая 37,35 м2, жилая 15,72 м2, кухни 11,9 м2
Кол-во комнат Однокомнатная
Продается 1-комн. квартира, площадью 37.35 м2 малоэтажной в панельной новостройке в 16 мин. транспортом от м. Крылатское. Возможен вариант покупки с использованием ипотечных средств, есть рассрочка, возможна покупка с использованием материнского капитала, есть военная ипотека. Жилая площадь 15.72 м2, кухня 11.9 м2, комнаты изолированные, окна выходят во двор. Квартира располагается на 8 этаже 8-этажного дома в ЖК Новая Рига. Застройщик - ООО "СЗ "Гранель П", сдача дома - I квартал 2025 года, дом уже сдан. Дом оборудован пассажирским лифтом, есть мусоропровод, закрытая территория. Подземная парковка, парковка охраняется. Инфраструктура: школа, детский сад, детские площадки, места для отдыха, супермаркет, рестораны, коммерческие объекты. Новый жилой комплекс находится на западе Москвы в деревне Глухово, всего в 10 км от МКАД по самому престижному направлению - Новорижскому шоссе. Благоприятная экологическая ситуация усиливается отсутствием промышленных зон и вредных предприятий, а господствующая над Новорижским направлением Подмосковья роза ветров делает воздух чистым и свежим. ЖК «Новая Рига» - современный уникальный проект комплексного освоения территории от ГК «Гранель», в рамках которого на площади 37,6 га появится 9 восьмиэтажных жилых домов переменной этажности (от 5 до 8 этажей) и собственная развитая инфраструктура, которая позволит жителям чувствовать себя комфортно даже не выходя за пределы микрорайона. Для покупателей объектов ГК «Гранель» запускает субсидированную семейную ипотеку под 3,9%. Воспользоваться программой могут семьи, в которых есть хотя бы один ребёнок младше 7 лет. Процентная ставка сохраняется на весь срок кредитования. Для оформления субсидированной ипотеки необходимо внести первоначальный взнос от 20,1%. Возможно использование материнского капитала. Максимальная сумма займа по программе - 12 млн рублей в Москве и Московской области, и 6 млн рублей для регионов России, например, для Башкортостана. Более подробная информация на официальном сайта Застройщика или по телефону. Условия и сроки акции уточняйте по телефону. Позвоните и узнайте условия покупки прямо сейчас!
Описание дома
Этажность дома 8
Объявление № 20132631
Дата подачи:
20 ноября 2024 г. 3:34
Дата обновления:
20 ноября 2024 г. 0:07
Просмотров 20 Хотите продать быстрее?

Продавец
Отдел продаж
Показать номер телефона
Пожаловаться
Комментарии:
Добавить